筑西市井上第1 新築戸建て 1号棟

1,890万円

茨城県筑西市井上383-3

関東鉄道常総線「黒子」駅徒歩13分

関東鉄道常総線「大田郷」駅徒歩42分

関東鉄道常総線「騰波ノ江」駅徒歩47分

価格
1,890万円
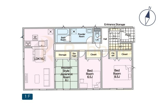
間取り/建物面積
3LDK/88.29㎡
所在地
茨城県筑西市井上383-3
築年
2026年1月(新築)
駐車
有(2台)
交通

関東鉄道常総線黒子」駅 徒歩13分

関東鉄道常総線大田郷」駅 徒歩42分車9分 3.3km

関東鉄道常総線騰波ノ江」駅 徒歩47分車10分 3.7km

筑西市井上第1 新築戸建て 1号棟の基本情報

物件名
筑西市井上第1 新築戸建て 1号棟
価格
1,890万円
建物面積
88.29㎡
土地面積
61.43坪(203.08㎡)
築年月
2026年1月(新築)
総戸数
1戸
所在地
茨城県筑西市井上383-3
交通

関東鉄道常総線黒子」駅 徒歩13分

関東鉄道常総線大田郷」駅 徒歩42分車9分 3.3km

関東鉄道常総線騰波ノ江」駅 徒歩47分車10分 3.7km

筑西市井上第1 新築戸建て 1号棟の詳細情報

設備条件
  • 閑静な住宅地
  • 建設住宅性能評価書付
  • 駐車2台可
  • 耐震構造
設備(その他)
    -
駐車場/月額
有(2台)/0円
土地権利
所有権
国土法届出
不要
用途地域
第一種住居
取引態様
仲介
引渡し
即時
備考
◇『住宅ローン減税』対象物件。お得な制度が利用可能です♪◇自己資金0円でも購入可能です。追加工事や家電費用もご相談ください♪◇多くの住宅メーカーを紹介できる弊社R-homeだから、色々な物件を比較してマイホーム探しが可能です♪メリットだけではなくデメリットもしっかり説明いたします。

筑西市井上第1 新築戸建て 1号棟のコメント(おすすめポイント)

◆◇◆完成物件につき当日ご見学可能です♪◆◇◆『0297-44-7207』までお気軽にご連絡ください。事前にご連絡いただければ、早朝や夜間のご見学も対応致します♪■R-homeでご見学のメリット■①経験豊富なスタッフが住宅ローンの悩みを解消します。②自己資金0円で住宅購入できます!③「知りたい情報だけ」という短時間のご見学も可能です。④お引き渡しまで全てのお手続きに同行サポート致します♪

筑西市井上第1 新築戸建て 1号棟で募集中の物件

  1. 26.70坪 (88.29㎡)

    1,890万円(70.79万円/坪)

周辺施設

  • ツルハドラッグ黒子店の画像

    ドラッグストア

    ツルハドラッグ黒子店

    165m(3分)

  • 筑西市立認定こども園せきじょうの画像

    幼稚園

    筑西市立認定こども園せきじょう

    460m(6分)

  • スーパーツカダの画像

    スーパー

    スーパーツカダ

    750m(10分)

  • 筑西市立関城東小学校の画像

    小学校

    筑西市立関城東小学校

    1150m(15分)

  • セブンイレブン筑西梶内店の画像

    コンビニエンスストア

    セブンイレブン筑西梶内店

    1714m(22分)

  • 筑西市立関城中学校の画像

    中学校

    筑西市立関城中学校

    2328m(30分)

近隣の物件

  1. 筑西市井上

    4LDK (106.10㎡)

    1,790万円

よく見られている物件

  1. 守谷市けやき台2丁目

    3LDK (91.08㎡)

    3,099万円

  2. 常総市内守谷町きぬの里3丁目

    3LDK (115.25㎡)

    1,990万円

  3. 流山市駒木台

    4DK (101.60㎡)

    1,780万円

  4. 取手市戸頭

    4LDK (102.68㎡)

    3,480万円

筑西市井上第1 新築戸建て 1号棟

お気軽にお問い合わせください

LINEからお問い合わせ 無料お問い合わせ

R-home

0297-44-7207

9:30~18:30

(休:無休)