常総市東野原第1 新築戸建て 1号棟

2,190万円

茨城県常総市東野原766-15

関東鉄道常総線「南石下」駅徒歩7分

関東鉄道常総線「石下」駅徒歩20分

関東鉄道常総線「玉村」駅徒歩45分

価格
2,190万円
間取り/建物面積
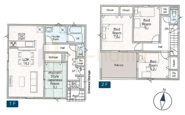
4LDK/98.82㎡
所在地
茨城県常総市東野原766-15
築年
2026年1月(予定)
駐車
有(3台)
交通

関東鉄道常総線南石下」駅 徒歩7分

関東鉄道常総線石下」駅 徒歩20分

関東鉄道常総線玉村」駅 徒歩45分車9分 3.6km

常総市東野原第1 新築戸建て 1号棟の基本情報

物件名
常総市東野原第1 新築戸建て 1号棟
価格
2,190万円
建物面積
98.82㎡
土地面積
53.41坪(176.57㎡)
築年月
2026年1月(予定)
総戸数
1戸
所在地
茨城県常総市東野原766-15
交通

関東鉄道常総線南石下」駅 徒歩7分

関東鉄道常総線石下」駅 徒歩20分

関東鉄道常総線玉村」駅 徒歩45分車9分 3.6km

常総市東野原第1 新築戸建て 1号棟の詳細情報

設備条件
  • 建設住宅性能評価書付
  • 駐車3台可
  • 耐震構造
設備(その他)
    -
駐車場/月額
有(3台)/0円
土地権利
所有権
国土法届出
不要
用途地域
無指定
取引態様
仲介
引渡し
相談
備考
◇『住宅ローン減税』対象物件。お得な制度が利用可能です♪◇自己資金0円でも購入可能です。追加工事や家電費用もご相談ください♪◇多くの住宅メーカーを紹介できる弊社R-homeだから、色々な物件を比較してマイホーム探しが可能です♪メリットだけではなくデメリットもしっかり説明いたします。

常総市東野原第1 新築戸建て 1号棟のコメント(おすすめポイント)

◆◇◆近隣の同仕様完成物件をご見学できます♪◆◇◆『0297-44-7207』までお気軽にご連絡ください。事前にご連絡いただければ、早朝や夜間のご見学も対応致します♪■R-homeでご見学のメリット■①経験豊富なスタッフが住宅ローンの悩みを解消します。②自己資金0円で住宅購入できます!③「知りたい情報だけ」という短時間のご見学も可能です。④お引き渡しまで全てのお手続きに同行サポート致します♪

常総市東野原第1 新築戸建て 1号棟で募集中の物件

  1. 29.89坪 (98.82㎡)

    2,190万円(73.27万円/坪)

周辺施設

  • カワチ薬品石下店の画像

    ドラッグストア

    カワチ薬品石下店

    750m(10分)

  • 認定こども園石下保育園の画像

    保育園

    認定こども園石下保育園

    820m(11分)

  • 石下幼稚園の画像

    幼稚園

    石下幼稚園

    860m(11分)

  • ウエルシア常総石下店の画像

    ドラッグストア

    ウエルシア常総石下店

    1000m(13分)

  • セブンイレブン茨城石下店の画像

    コンビニエンスストア

    セブンイレブン茨城石下店

    1008m(13分)

  • 石下小学校の画像

    小学校

    石下小学校

    1400m(18分)

  • エコス TAIRAYA(たいらや) 石下店の画像

    スーパー

    エコス TAIRAYA(たいらや) 石下店

    1965m(25分)

  • 石下中学校の画像

    中学校

    石下中学校

    2300m(29分)

近隣の物件

  1. 常総市相野谷町

    3LDK (83.63㎡)

    2,590万円

  2. 常総市相野谷町

    4LDK (105.16㎡)

    2,390万円

  3. 常総市相野谷町

    4LDK (109.30㎡)

    2,390万円

  4. 常総市水海道天満町

    3SLDK (98.81㎡)

    2,190万円

常総市東野原第1 新築戸建て 1号棟

お気軽にお問い合わせください

LINEからお問い合わせ 無料お問い合わせ

R-home

0297-44-7207

9:30~18:30

(休:無休)